Проектирование террасы плавательного бассейна
В проектировании террасы для плавательного спа бассейна или уличного джакузи для круглогодичного использования есть свои особенности и свои правила. Они могут быть неизвестны вашему ландшафтному дизайнеру или архитектору. Мы постарались собрать основные параметры в короткий чек лист.
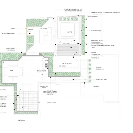
Коротко можно сформулировать из следующим образом.
- Необходима обходная дорожка или дорожка достаточной и безопасной ширины вдоль длинной стороны бассейна. Это нужно для того, чтобы вы могли складывать крышку чехол спа
- Ширина дорожки рассчитывается, исходя из того, что вы будете сосредоточены на процессе сборки крышки спа, и не будете смотреть в этот момент под ноги
- Высота этой дорожки должна позволять вам складывать или собирать чехол крышку джакузи не сгибаясь
- Предусмотрите поверхность или скамью, на которой вы сможете оставить свою одежду, обувь и приготовленные полотенца
- Обязательно позаботьтесь о том, чтобы к оборудованию плавательного спа бассейна был оставлен быстрый и удобный доступ. Он не нужен для повседневного обслуживания свим спа. Он потребуется при регулярном техническом осмотре или во время ремонта специалистам джакузи
- Хорошо иметь отдельный объем для хранения различных аксессуаров по уходу за бассейном. Предусмотрите место, где вы будете хранить фильтры и химию для спа, ящик для водного пылесоса, ароматерапии и других полезных вещей
- Если у вас красивый вид, расположите плавательный бассейн таким образом, чтобы вы могли наслаждаться пейзажем, сидя на гидромассажном сидении или удобно расположившись на шезлонге плавательного джакузи
- Встроенная светодиодная подсветка не только добавит эффектности всей композиции, но и послужит вашей безопасности в темное время суток.

Разместите крышку плавательного бассейна с противотоком так, чтобы она не закрывала красивый вид

Ступени для спа бассейна с местом для хранения химии и аксессуаров